Departamento En Centro De Santiago San Pablo Con San Martin

Descripción

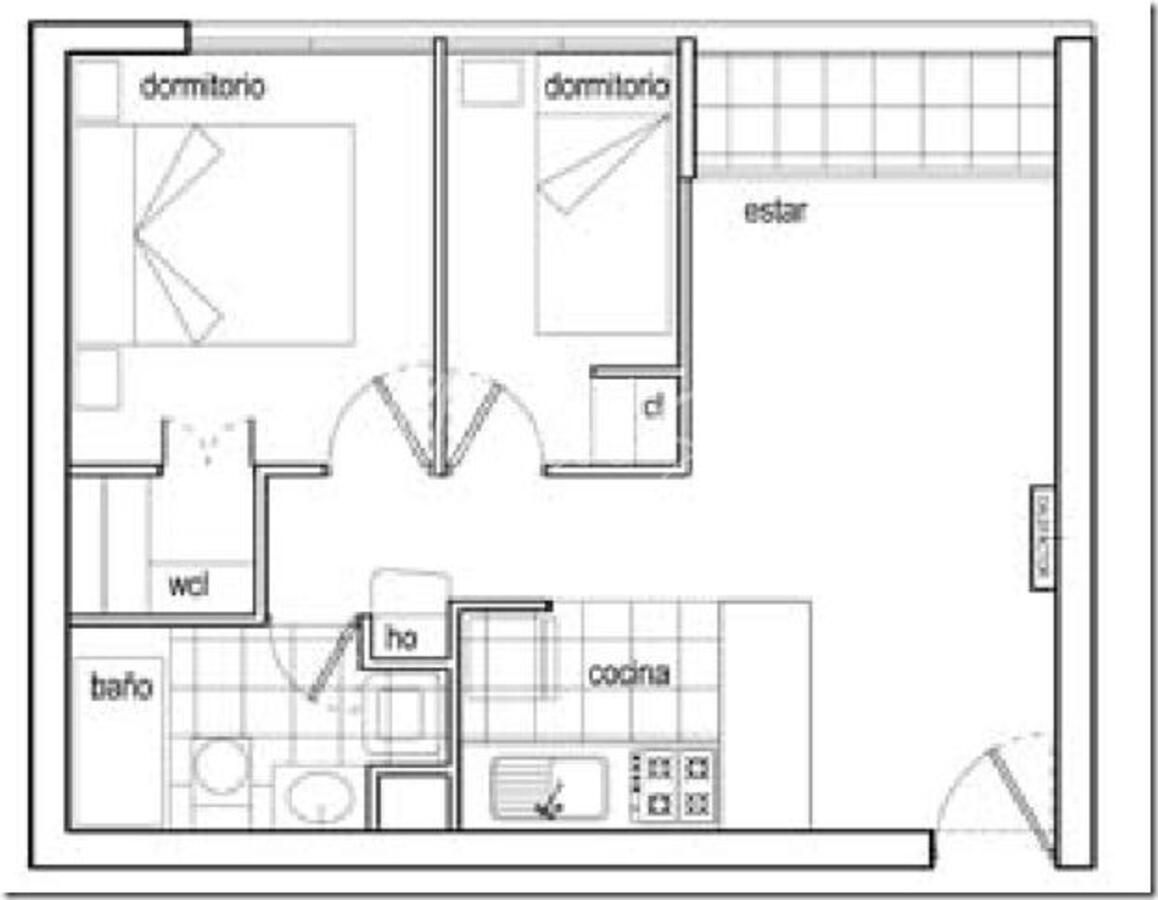
Departamento centro de Santiago, calle San Pablo con San Martin, quinchos para asado, conserjería 24 horas, piscina en terraza, lavandería , gimnasio, wifi en terraza y 1º piso. Departamento consta de dos dormitorios, living, cocina americana, dormitorio principal con Wolking closet, dormitorio pequeño closet tradicional , conexión a lavadora , terraza , full electric. Cocina equipada horno, encimera y campana eléctrica, refrigerador nuevo Ubicado en San Pablo esquina San Martín , pasos metro Santa Ana Tiene aire acondicionado Actualmente con arrendatarios, pero esta en la escritura en caso que se venda Queda con cocina encimera

Detalles

  • M2 Propiedad: 44
  • M2 Construidos: 44
  • Habitaciones: 2
  • Baños: 1
  • Precio:$ UF 2.490
Consulta gratis

Programe una consulta gratuita con nuestro especialista.

mesa de ayuda

¿Tienes preguntas o quieres más información? Llama ahora

+56996406172